RealBox
Concepteur de plans métrés 2D, modélisations 3D et visites virtuelles, spécialisé en rénovation et réhabilitation.
Nous accompagnons les professionnels de l'aménagement immobilier (commercial, résidentiel, ...) avec une solution innovante, réactive et économique, pour optimiser et enrichir les solutions de métrages conventionnelles.
Nos avantages
Avec RealBox, vous bénéficiez d'une expertise unique, d'une solution high-tech, de délais courts et de résultats de haute qualité pour vos rendus 2D (CAD), 3D (BIM) incluant les visites virtuelles de vos espaces.
Nos services

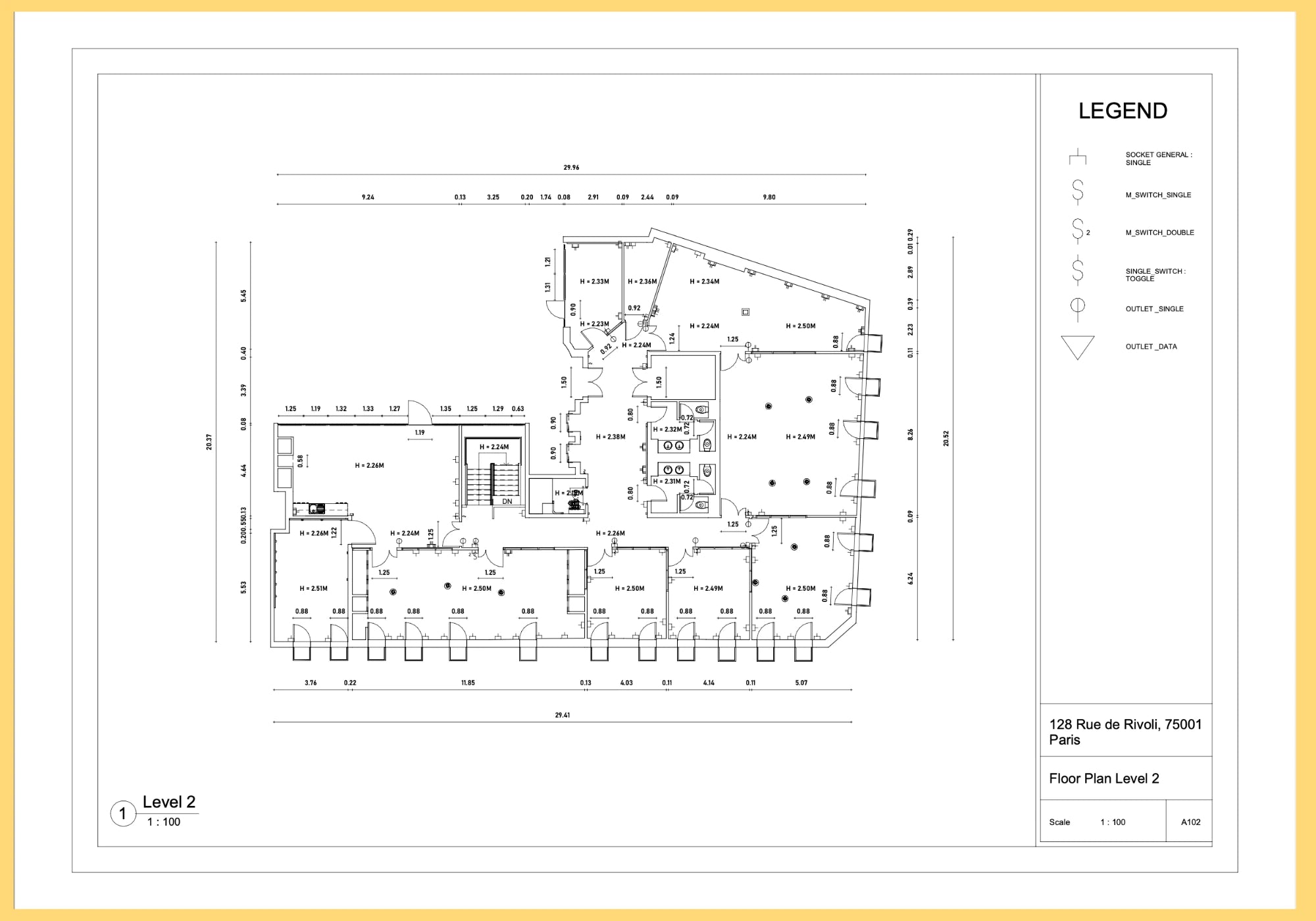
Plans 2D côtés
Nous comprenons que les plans 2D cotés (CAD) sont l'épine dorsale de tout projet architectural.
Notre équipe de concepteurs qualifiés est spécialisée dans la création de plans 2D détaillés et précis, en respectant scrupuleusement les données des bâtiments et tous vos besoins spécifiques (indication CVC, éclairages, trappes CFO/CFA, …).
Que vous ayez besoin de plans d'étage ou de toute autre représentation 2D, nous sommes là pour répondre à vos besoins.

Nuage de points
Le nuage de points est un outil précieux pour capturer avec précision les données tridimensionnelles de vos espaces architecturaux.
Grâce à nos outils technologiques, nous pouvons créer des nuages de points détaillés qui vous permettront d'explorer et d'analyser votre projet dans les moindres détails.
Que ce soit pour des relevés de bâtiments existants, des plans d'aménagement intérieur ou pour une visualisation de vos projets, nous transformons les relevés laser détaillés en données exploitables.

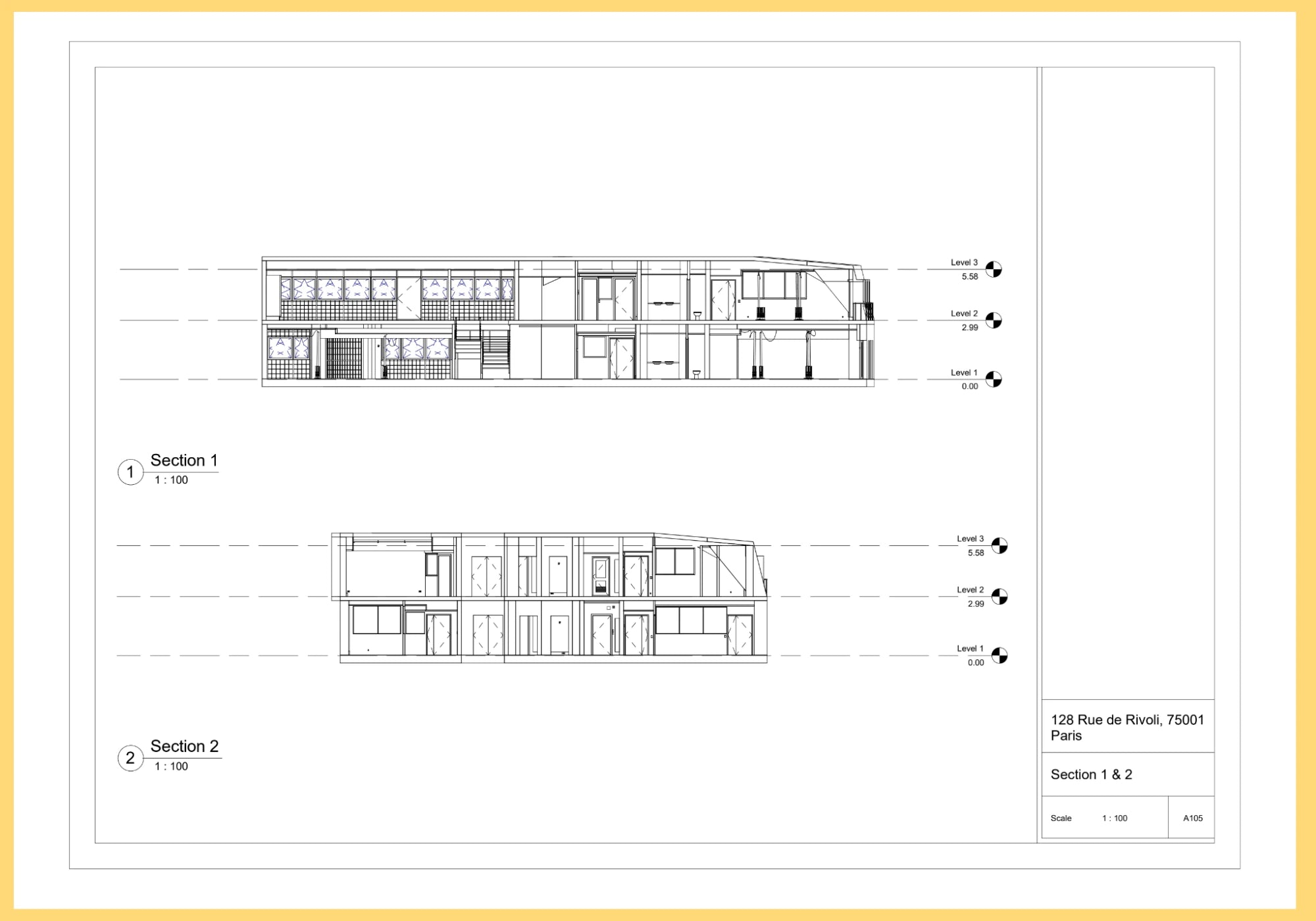
Plans de coupe
Les plans de coupe sont essentiels pour comprendre la structure et les détails d'un bâtiment.
Nous offrons des services de création de plans de coupe clairs et précis, qui vous permettront de visualiser et d'analyser les différentes parties de vos projets architecturaux.
Nos concepteurs travailleront en étroite collaboration avec vous pour s'assurer que tous les éléments importants sont inclus dans les plans de coupe, vous permettant ainsi d'avoir une vision complète et détaillée de votre projet.

BIM
Les fichiers BIM sont livrés au format SKP, .RVT ou .IFC, offrant ainsi une immersion complète dans vos espaces en trois dimensions.
Ces fichiers sont essentiels pour simplifier l'analyse de la structure du bâtiment et coordonner efficacement les divers corps de métiers impliqués dans votre projet.
Grâce à cette approche, vous disposez d'un outil puissant pour visualiser et comprendre chaque aspect de votre construction, tout en facilitant la collaboration entre les équipes et en garantissant une exécution harmonieuse de chaque étape du processus.

Visite virtuelle
Nous nous appuyons sur la technologie de modélisation la plus aboutie du marché qui, grâce à la combinaison du laser et de prises de vue photographiques, permet de reconstituer vos projets architecturaux en 3D.
Outre le réalisme de son rendu digital, cette solution permet également de créer des contenus additionnels pour enrichir la visite virtuelle grâce à des informations adhoc (liens web, texte, documents, plans, …).
Explorez et visualisez l'apparence, la fonctionnalité et l'ambiance d'un espace avant/en cours de rénovation. La visite virtuelle facilite la communication entre les différents corps de métiers, la prise de décision et l'optimisation des aménagements.
(Hébergement offert la première année)

Virtual Staging
Le virtual staging est un outil puissant pour sublimer votre bien.
Que ce soit pour des annonces immobilières, des présentations marketing ou des projets de rénovation, notre équipe donne vie à vos idées. Envoyez-nous vos photos d'espaces vides ou meublés, et nous les transformons en images captivantes de pièces meublées et décorées avec goût.
Notre processus assure une harmonie visuelle et un attrait esthétique adaptés à chaque propriété. Nous nous spécialisons dans la rénovation des murs, sols et plafonds (couleurs, matériaux, etc.), l'aménagement avec l'ajout de mobilier, ainsi que la modification ou la suppression d'éléments existants, par exemple le remplacement d'une vieille cuisine par une plus moderne. Transformez votre espace avec notre expertise en virtual staging.
Nos livrables
Ils nous font confiance
Tarifs H.T.
Ile-de-France(Nous contacter pour les tarifs toute France et étranger)












